Carpinchos 100 |NDA6980

Principal

Precio: Consultar
Operacion: Venta
Tipo: Casa
Barrio: Carpinchos
Baños: 4
Estado: Excelente
Cocheras: 1
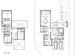
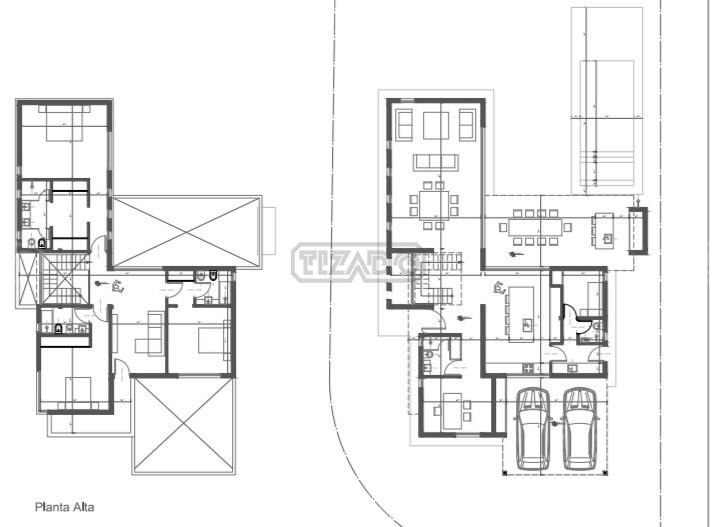
Sup. Propia: 328,00 m2
Sup. Cubierta: 263,00 m2
Sup. Semi Cubierta: 65,00 m2

NUEVO INGRESO. Casa a estrenar en Carpinchos – Diseño moderno y lista para mudarse. Excelente! sobre lote de 573 m², con 263 m² cubiertos + galerías. Muy buena calidad constructiva, Espacios amplios y funcionales. Arquitectura moderna, súper luminosa, con combinación de hormigón, piedra y grandes ventanales. Cuenta en PB: living comedor, cocina integrada al comedor diario, baño completo, escritorio/4to dorm, lavadero, dependencia de servio, galería con piso radiante y parrilla. En PA: 3 suite mas un family que podria adaptarse para un dormitorio mas. Exterior: jardín y pileta ya terminada.

Caracteristica

  • A Estrenar
  • Cochera
  • Calefacción
  • Cloacas
  • Agua Caliente

Detalle

  • Agua caliente: si
  • Baño Servicio: si
  • Baños: 5
  • Calefacción: piso radiante a gas
  • Cochera: semi para dos autos mas otras descub
  • Cocina: 5x4
  • Comedor: Integrado al living
  • Comedor Diario: integrado a la cocina
  • Dependencia: 2,3x2,6
  • Dormitorio: 5x4+vest+baño
  • Dormitorio: 3.8x3.5 con placar + baño completo
  • Dormitorio: 3.8x3.6 con placard + baño completo
  • Dormitorio: opcional, entrega family
  • Escritorio: 4x3 o 4to dorm
  • Galería: con piso radiante 6x4
  • Jardín: con grama bahiana
  • Lavadero: 2,5x2
  • Living: 8x5
  • Parrilla: si
  • Pileta: si
  • Toilette: baño completo con ducha

Mapa

Ver ubicación
Ver ubicación