UNO BALVANERA - Moreno 2900
Principal
| Precio: | U$S 76.558 |
|---|---|
| Operacion: | Venta |
| Tipo: | Monoambiente |
| Barrio: | Balvanera |
| Baños: | 1 |
| Estado: | En Obra |
| Orientación: | Sureste |
| Disposición: | Frente |
| Sup. Propia: | 37,05 m2 |
| Sup. Cubierta: | 34,55 m2 |
| Sup. Semi Cubierta: | 2,50 m2 |
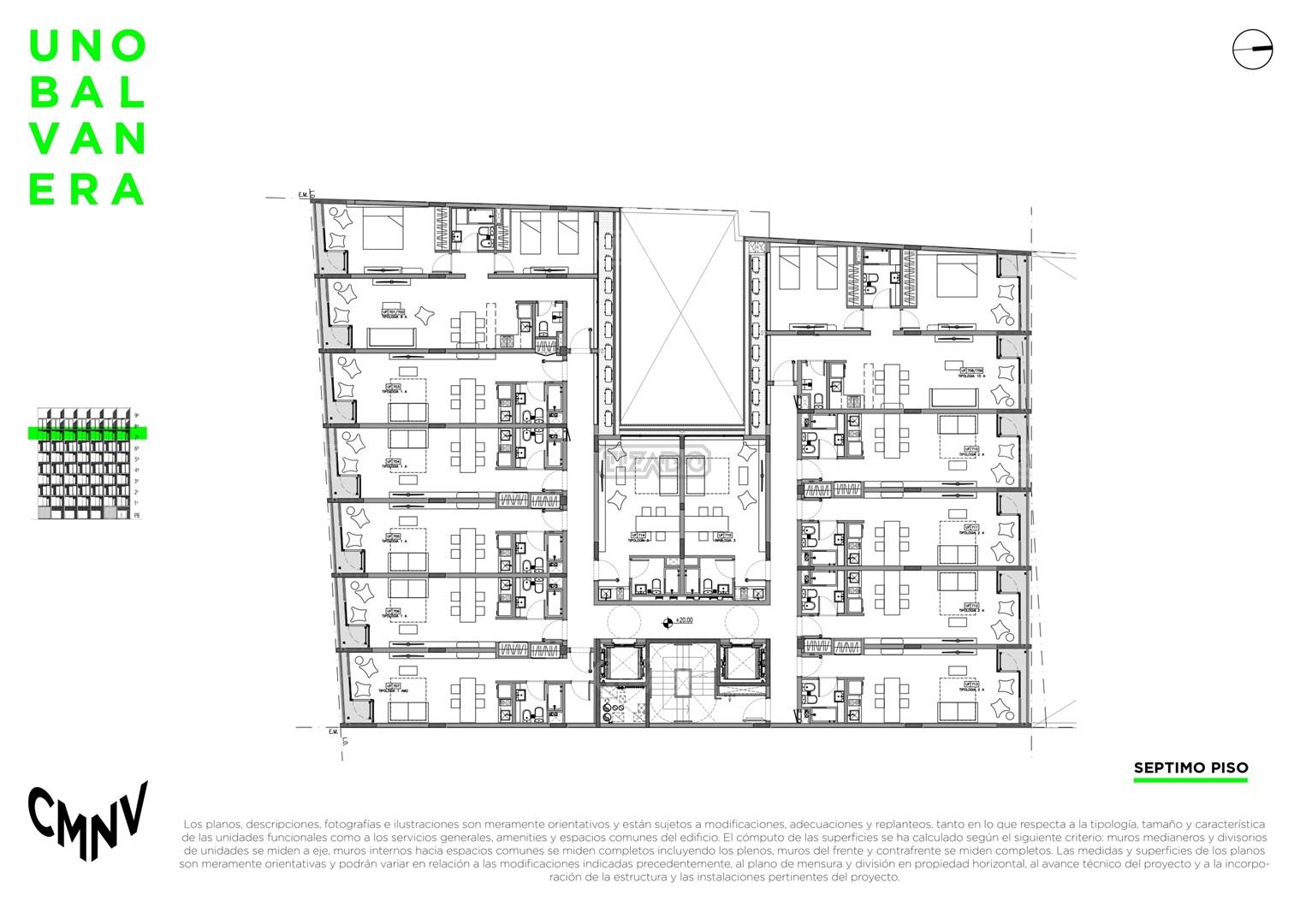
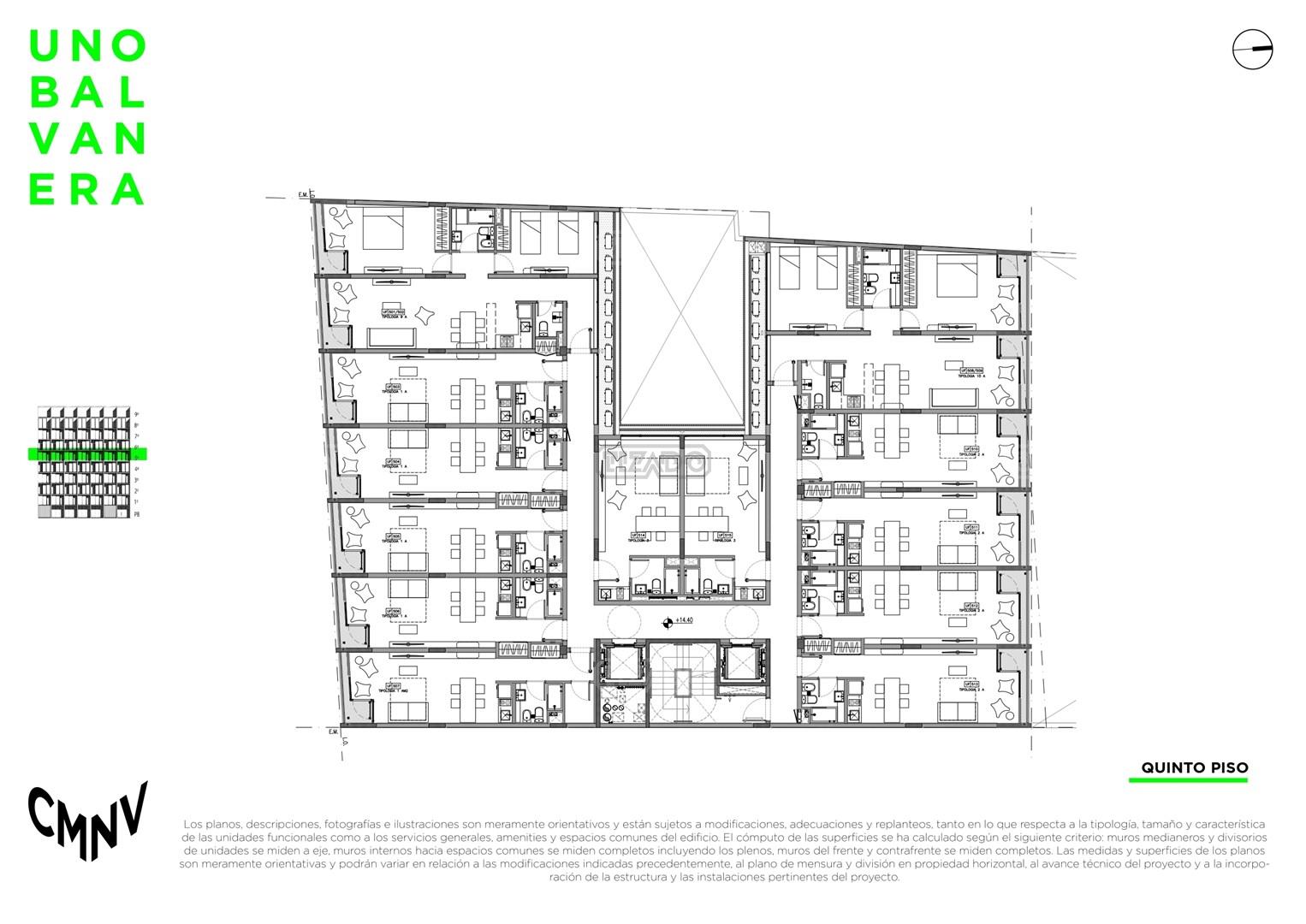
Unidades
Servicios y Amenities
- Apto Profesional
- Balcón
- Luz
Detalle
- Agua caliente: central
- Amenitie: huerta urbana, piscina, solárium, vestuarios,
- Amenitie: SUM, Laboratorio de café, Centro de entrenamiento,
- Amenitie: bicicleteros, lavadero, pequeño taller de herramie
- Ascensor: 2
- Balcón: si
- Baños: 1.92 x 1.90
- Calefacción: Split frío/calor
- Cantidad Pisos: 9
- Cocina: Integrada
- Deptos. por Piso: 12
- Living: 6.96 x 3.22
- Tipo Pisos: vinilico
Características del Emprendimiento
UNO BALVANERA, En el corazón de Buenos Aires, a 50 metros de la nueva plaza Manzana 66, se desarrollará un edificio único en un barrio donde convergen la historia, la cultura y el futuro. Un área caracterizado por un tejido urbano consolidado con centros de salud y educativos de todos los niveles, edificios históricos de valor arquitectónico y patrimonial. Espacios verdes renovados y una amplia red de transporte público y nueva estructura, que ofrece conexiones con toda la ciudad en pocos minutos. UNO BLV contará con 10 pisos, 1 subsuelo con acceso por rampa con 45 cocheras, 3 locales comerciales, Unidades de 1, 2 y 3 ambientes, lofts y estudios profesionales. Jardines y espacios abiertos de uso común, techo verde, huerta urbana, piscina, solárium, vestuarios, SUM, Laboratorio de café, Centro de entrenamiento, bicicleteros, lavadero, pequeño taller de herramientas, wifi central en espacios comunes, Monitoreo CCTV y control de accesos 24 hs. Carpinterías exteriores con doble vidrio laminado, piso vinílico, agua caliente central, aire acondicionado individual en cada unidad, cocinas y baños equipados con muebles, espacio de ducha con mampara. Financiación!!! Matrícula Cucicba : 1053
Los planos, descripciones fotografías e ilustraciones son meramente orientativos y están sujetos a modificaciones, adecuaciones y replanteos, tanto en lo que respecta a la tipología, tamaño y característica de las unidades funcionales como a los servicios generales, aménities y espacios comunes del edificio. El computo de las superficies se ha calculado según el siguiente criterio: muros, medianeros y divisorios de unidades se miden a eje, muros internos hacia espacios comunes se miden completos incluyendo los plenos, muros de frente y contrafrente se miden completos. Las medidas y superficies de los planos son meramente orientativas y podrán variar en relación a las modificaciones indicadas precedentemente al plano de mensura y división en propiedad horizontal, al avance técnico del proyecto y a la incorporación de la estructura y las instalaciones pertinentes del proyecto.
Mapa