Av. Maipu 1200 |EMP4851
Principal
| Precio: | U$S 495.000 |
|---|---|
| Operacion: | Venta |
| Tipo: | Local |
| Barrio: | Vicente López |
| Baños: | 1 |
| Estado: | En Obra |
| Sup. Total: | 160,00 m2 |
| Movilidad Reducida: | Sí |
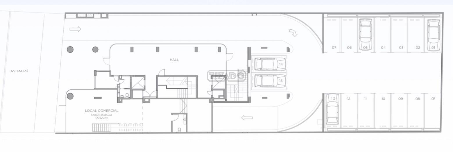
MAIN TOWER- VICENTE LOPEZ DESDE OTRO ANGULO. Un espacio con luz propia, un diseño innovador y de vanguardia presente en el dinamismo y la fluidez de las formas curvilíneas que comprenden la arquitectura del edificio, Main Tower captura el espíritu de quienes le escapan a la rutina. EL PAISAJE: VIRTUD Y ATRACCIÓN PRINCIPAL DE LA TORRE. MAIN TOWER estará implantada sobre un extraordinaria fracción y una ubicación privilegiada sobre la Avenida Maipú 1255, Vicente López entre las calles Gral Roca y Gral Urquiza. Carpinterías de aluminio de alta prestación y DVH (doble vidriado hermético) que le proporcionan un exterior fuerte pero transparente a esta torre reflejando bellamente la luz y el color de su entorno, Calefacción individual a gas por piso radiante. Nada define el verdadero lujo mejor que la tranquilidad y eso es lo que MAIN TOWER busca entregar a cada residente para los que imponen un estilo de vida único- Sky Terrace con piscina con vistas panorámicas de Zona Norte. Diseñado para disfrutar, esta piscina ofrecerá reposeras, áreas de relax, sauna, vestuario, un moderno gimnasio, y también un estupendo salón de usos múltiples con inmejorables vistas del atardecer. Seguridad con acceso controlado al edificio. Local comercial ubicado en Planta Baja. Cochera disponible en subsuelo. En el último piso se ubican los amenities de lujo • La combinación perfecta entre confort, estilo y calidad de vida. Obra avanzada – Próxima entrega-
Caracteristica
- A Estrenar
Detalle
- Cochera: Opcional
Mapa